Maîtrise d’Ouvrage : Privée
KONTRAST Architecture
Mission : Complète
Durée des travaux : 6 mois
Parcelle : 375m²
Surface Plancher Supplémentaire : 125m²
Budget : 270 000€ HT
Livré : en 2023
Afin d’agrandir son office notarial, ce projet nous a été proposé en 2021.
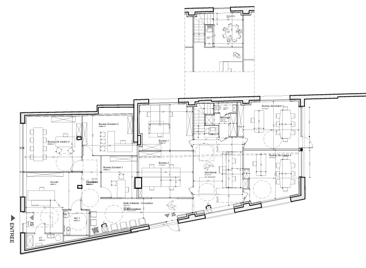
Au-delà de l’agrandissement de la surface, l’objectif était de réorganiser complètement l’ensemble du bâtiment afin d’améliorer la productivité ainsi que les relations entre les occupants avec l’apport de nouveaux espaces comme la salle de pause, les espaces de réserve ou la terrasse extérieure.
Le choix d’occuper la totalité du volume cathédrale s’est imposé dès l’esquisse. Celui-ci nous a permis d’augmenter la surface de plancher en intégrant la mezzanine recevant la salle de pause. L’augmentation du nombre de bureaux avait pour but la création de différents pôles au sein de ce même office. Une vraie salle d’attente s’est imposée au centre du bâtiment de manière à faciliter les circulations entre les occupants et les clients.
En façade, nous avons souhaité retrouver la brique d’origine et apporter un grand espace vitré donnant sur cour pour un réel gain de luminosité de l’ensemble. Les ouvertures en toiture viennent compléter cet apport.


SEP / Agrandissement étude notariale










